0
6 Pièce(s)
3 Chambre(s)

Maison de caractère avec pierres apparentes loft moderne

Châtenois (88170)
Réf : AA-376

Vous aimez allier l'ancien avec la modernité cette jolie maison individuelle est faite pour vous.

Située dans la charmante ville de CHATENOIX (88), je vous propose à la vente une maison rénovée ayant un DPE C.

Sur un terrain de 187 m2 entierement cloturé et dallés, se trouve cette charmant maison de 123 m2 sur 2 étage.

Rénové dans un effet loft vous arrivez dans une entrée spacieuse de 11m2, un espace buanderie, donnant sur une pièce de vie avec cuisine américaine de 51 m.

Les plans comme toujours sont avec les photos.

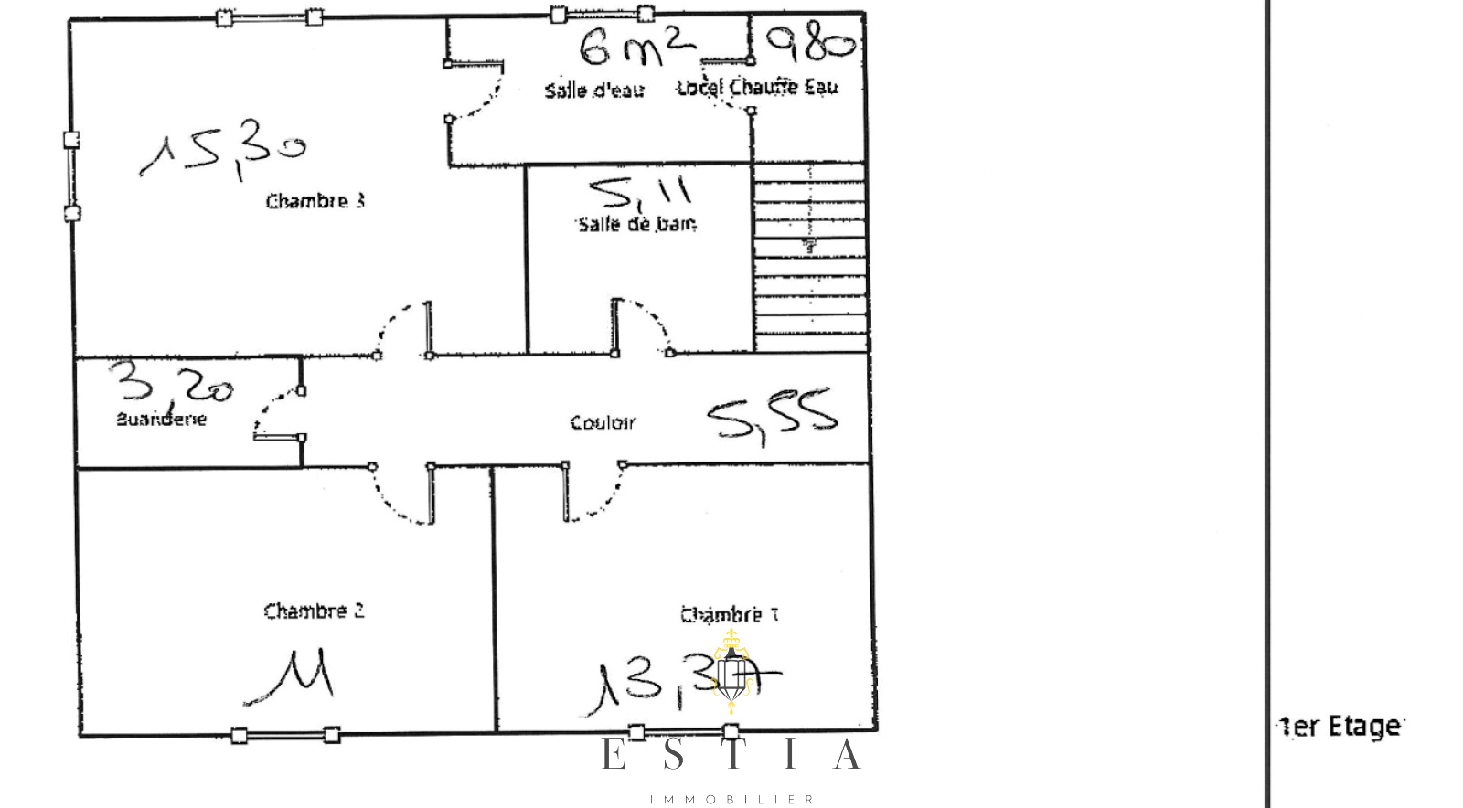
Au 1er étage, vous aurez accès à deux chambres et une salle de bain, ainsi qu'une suite parentale.

Taxe foncière 614,00 €

Prix de vente 180 800 € FAI

Pas de travaux de rénovation à prévoir

Bien mis en vente par Jennifer RCS 915 385 959 chez ESTIA Immobilier RCS 09 894 017 862 CPI Caroline FLORANCE 5401 2021 000 000 13


Zone soumise à une obligation légale de débroussaillement.
Les informations sur les risques auxquels ce bien est exposé sont disponibles sur le site Géorisques
Ce bien vous intéresse ?
Fieldset par défaut
Fieldset par défaut
Validation

* Champs obligatoires

Contacter l'agence
Validation
Les informations recueillies sur ce formulaire sont enregistrées dans un fichier informatisé par La Boite Immo agissant comme Sous-traitant du traitement pour la gestion de la clientèle/prospects de l'Agence / du Réseau qui reste Responsable du Traitement de vos Données personnelles. La base légale du traitement repose sur l'intérêt légitime de l'Agence / du Réseau. Elles sont conservées jusqu'à demande de suppression et sont destinées à l'Agence / au Réseau. Conformément à la loi « informatique et libertés », vous disposez des droits d’accès, de rectification, d’effacement, d’opposition, de limitation et de portabilité de vos données. Vous pouvez retirer votre consentement à tout moment en contactant directement l’Agence / Le Réseau. Consultez le site https://cnil.fr/fr pour plus d’informations sur vos droits. Si vous estimez, après avoir contacté l'Agence / le Réseau, que vos droits « Informatique et Libertés » ne sont pas respectés, vous pouvez adresser une réclamation à la CNIL. Nous vous informons de l’existence de la liste d'opposition au démarchage téléphonique « Bloctel », sur laquelle vous pouvez vous inscrire ici : https://www.bloctel.gouv.fr Dans le cadre de la protection des Données personnelles, nous vous invitons à ne pas inscrire de Données sensibles dans le champ de saisie libre.
Ce site est protégé par reCAPTCHA, les Politiques de Confidentialité et les Conditions d'Utilisation de Google s'appliquent.

En Bref

Code postal 88170
Surface habitable (m²) 123,12 m²
surface terrain 187 m²
Surface loi Carrez (m²) 123 m²
Nombre de chambre(s) 3
Nombre de pièces 6
Nombre de niveaux 2
Vue Sur Street View
Nb de salle de bains 1
Nb de salle d'eau 1
Cuisine Américaine
Type de cuisine Equipée
Mode de chauffage Bois
Type de chauffage Poêle
Format de chauffage Individuel
Interphone NON
Visiophone NON
Terrasse OUI
Exposition Sud-Est
Année de construction 1871
Terrain piscinable OUI
Terrain arboré NON

Infos financières

Prix de vente 180 800 €
Les honoraires d'agence seront intégralement à la charge du vendeur  
Taxe foncière annuelle 614 €

Energie

Energie
DPE
GES